The owners of The Hideaway Village, located at the corner of Estero Boulevard and Lazy Way (5601 & 5607 Estero) have submitted plans to rebuild. If approved, the new resort will include a 30-unit boutique hotel and up to 3,500 square feet of commercial space including a restaurant and retail.
The Neighborhood Company has submitted plans to the town for the owner; SLASHA, LLC.
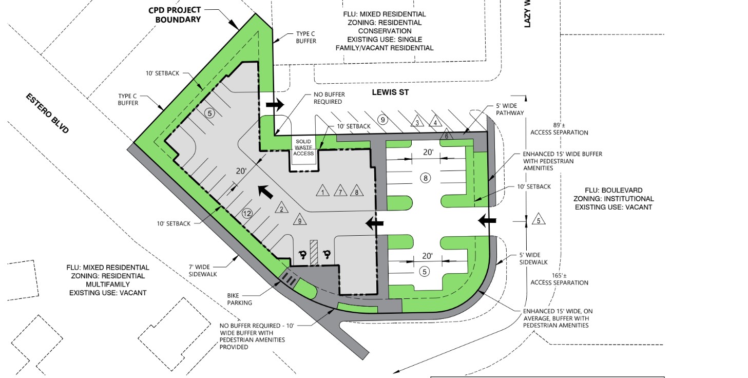
The total size of the property is .63 acres which is now an empty lot.
Before Hurricane Ian, the property included three buildings containing a 23-unit (22 guest units and a management unit) hotel/motel. The two-story buildings offered amenities such as kitchenette units, a swimming pool, outdoor dining areas, and on and off-site parking facilities for its guests.
The proposal is to rezone the property from Commercial Resort to Commercial Planned Development.
In addition to increasing the number of units by 7, the proposal includes a restaurant and a coffee shop open to the public, a small sundries shop open to the public, and a rooftop pool for hotel guests only.
The ground floor will include primarily parking, back of house operations, hotel lobby, and small food service/retail (café/coffee/sundries shop). The second floor consists of a combination of restaurant area, hotel accessory uses, fitness center/back of house, and hotel guest units. The third floor will be primarily guest units, and the fourth floor will consist of guest units and hotel amenities such as the pool/amenity deck area and back of house operations.
The CR zoning allows heights of three stories or 30 feet above base flood elevations. A deviation is requested regarding the height of the development, which is to allow a maximum of four stories and a maximum zoned height of 47 feet. The maximum actual height is 63 feet measured from grade to peak of highest roof.
The Neighborhood Company says the additional height is needed to allow for the appropriate construction of the proposed hotel and provides numerous design benefits. “This height will allow greater architectural details and roofline variations which create visual interest and a more attractive building. The additional height also allows for a reduced building footprint and greater setbacks from adjacent properties. The reduced footprint in return allows for pedestrian realm enhancements described above.”
As we’ve learned over the years, in order to request anything above and beyond the rules set forth in the Comprehensive Plan and land Development Code, applicants must provide the town with public benefit. Here’s what is proposed as public benefit for this project:
– Elimination and/or reduction of non-conformities.
– Improved pedestrian and vehicular access and site parking design to improve movements to and from Estero Boulevard and eliminate potential conflict points.
– Rebuilding resilient and hardened site improvements and structure.
– Providing for or increasing existing buffers and setbacks where abutting residential and other commercial uses to ensure cohesive redevelopment.
– Improving the public realm and creating a pedestrian-friendly environment through enhanced landscaping, bicycle parking, and pedestrian amenities along Estero Boulevard and Lazy Way.
– Encouraging bicycle (rentals for guests) and pedestrian activity to reduce vehicular impacts to the surrounding roadway network.
– Participation in the Don’t Rent a Car program.
– Continuing the redevelopment efforts of the island by bringing back a small boutique hotel and providing neighborhood commercial uses (restaurant and small retail) that are complementary to the area, which previously existed and that are envisioned for this part of the island.
– Replacement of non-FEMA compliant structures with a hardened, and resilient development which will meet all Florida Building Code and FEMA requirements and will benefit public health, safety and welfare.
– Providing outstanding coastal architecture compatible and consistent with existing, newly constructed homes and future projects.
– Contributing to the redevelopment of the island and strengthening the Town’s positive economic impacts including ad valorem taxes, bed tax, employment, and secondary impacts in supporting local businesses.
– Support of the FMB Elementary School through informing/educating staff about the school and providing flexible work schedules to facilitate drop-off and pick-up.
Following back-and-forth with staff the proposal will go before the LPA and eventually the Town Council.
The Neighborhood Company plans to host an Open House for the neighbors in March or April.

Local journalism is hard work. If you appreciate the most in-depth reporting on Fort Myers Beach, please support what we do HERE by Venmo, Zell or PayPal. Thank you.


Agree with c, LB, and Cathy. I hope the Town makes some progress on defining what qualifies as a Public Benefit.
You can already see the negative comments. Is it any wonder why hardly anything has been rebuilt yet? These people are happy with empty lots and low tourism, due to nowhere to stay. Then they all cry like babies when the restaurants aren’t built back fast enough. Get a clue people, the restaurants can not survive on locals only, who may eat out 2 times a month. They need tourists who have every meal at a restaurant.
Amen Freddy. Locals are liars if they say they support island business. They don’t pay money to park. Why would you? In non busy season about .05% of the people eat at a local beach restaurant because they are cheap asses. These fools moved to an island in Florida thinking nobody else should come.
Love it. Let’s get it done!!!
Still don’t see much of a public benefit package. If at all.
Exactly! There’s NONE
Who cares. What your public benefit? What have you done.
It is gorgeous and couldn’t agree more with Carol.
Looks great! Start building!
I think we’ve officially lost the meaning of the term “Public Benefit”
Agreed.
100% agree!
…replacement of non FEMA compliant structures.. That’s not a “Public Benefit”. That’s a required government regulation. Support FMB school? Really?! Come on, any business with employees who have school age children do this.
I’m for the development, just provide us with some legit public benefits. Or better yet, build what’s allowable and ask for none!
Looks beautiful and they sound like they want to continue to protect the island while building responsibility. What a concept!
Gorgeous!!!!